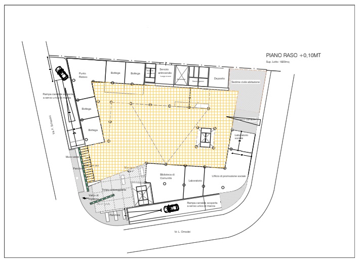
«Diverrà uno spazio culturale, economico e sociale polarizzante per il centro storico e l’intera città e prevede al piano terra spazi dedicati alle attività economiche e attività culturali, lo spiazzo centrale adibito per gli eventi»

Sul progetto che mira a riqualificare il centro cittadino e il mercato coperto, interviene l’Amministrazione comunale con un comunicato che intende precisare le finalità dell’intervento.
«Nell’idea progettuale, lo storico mercato coperto diverrà uno spazio culturale, economico e sociale polarizzante per il centro storico e l’intera città e prevede al piano terra spazi dedicati alle attività economiche e attività culturali, lo spiazzo centrale adibito per gli eventi» è riportato nel comunicato.
Il parcheggio è sotterraneo, al piano -1, per circa 40 posti auto.
Il progetto di riqualificazione proposto dall’Amministrazione Comunale finanziato nell’ambito del P.N.N.R per un totale di 5,5 milioni di euro ha come obiettivo ridare dignità al centro storico della città intervenendo nel recupero della sua antica centralità.
Per fare chiarezza alla comunità è giusto precisare che il famoso mercato coperto verrà completamente rigenerato divenendo uno spazio di polarità urbana, non più limitato alla sola destinazione commerciale, accresciuto nelle proprie qualità con l’istituzione di centri e servizi di aggregazione e promozione sociale, giardini pensili e aree di incontro. Sono previsti spazi per laboratori sociali, bike sharing, info point turistico.
La preesistenza delle funzioni commerciali, carattere distintivo dell’area, sarà, altresì, conservata con l’introduzione di un servizio ristorazione e con botteghe di artigianato e prodotti tipici capaci di divenire al tempo stesso somministratori nelle ore serali.
Il parcheggio previsto è sotterraneo, con la capienza di circa 40 posti auto, e non influenzerà le attività e la funzionalità dell’intera area.
L’Amministrazione Comunale presenterà tecnicamente alla città il progetto nella sua interezza per rendere completa l’informazione verso i cittadini».

Condividi